Capital Campaign
Your Heart Builds Their Home
Since we opened in 2019, Shep’s Place has been a refuge for over 120 homeless senior dogs. But the need is so much greater. Our house is small, and we are always at capacity, with a wait list that is months long.
To help more dogs, we have launched a campaign to raise funds for a second building on site. Not only would it triple our capacity, but it would add space to better integrate new dogs, and to group them and move them more efficiently. More dogs, living happier and safer.
If you love old dogs like we do, please consider a donation to help us expand. Many of the new rooms and spaces are available for naming rights, for your business, or in memory of a beloved pet; see details below.
Thank you!
Raised: $214,216.81
Goal: $900,000
The Plan
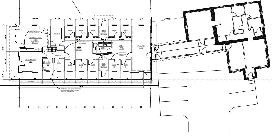
The plan for the proposed building was put together by Hawthorn Projects, in consultation with the Shep’s Place Board. It is designed specifically for the needs of senior dogs in a group setting, based on our years of experience caring for them. The original house is on the right, with the new building on the left.

The building will have 10 “suites”, which are individuals rooms for the dogs. These are not kennels, but small, comfortable rooms, with a couch or chair, and a dog bed or two. Each can house 2 compatible dogs. There are two “Lounges”, where larger groups of integrated dogs can live. This gives us a lot of flexibility for arranging dogs in groups, and moving them in and out of the building. On the east end, there is a large room with access to the play yards where we can work on dog integration indoors, regardless of the weather. On the west end, a garage space will be used to receive, process and store donations. In addition to a dedicated storage room, there is an unfurnished upstairs for additional storage. There will also be new parking spaces to the west of the building. A large play yard will be to the south, and a small one to the north.
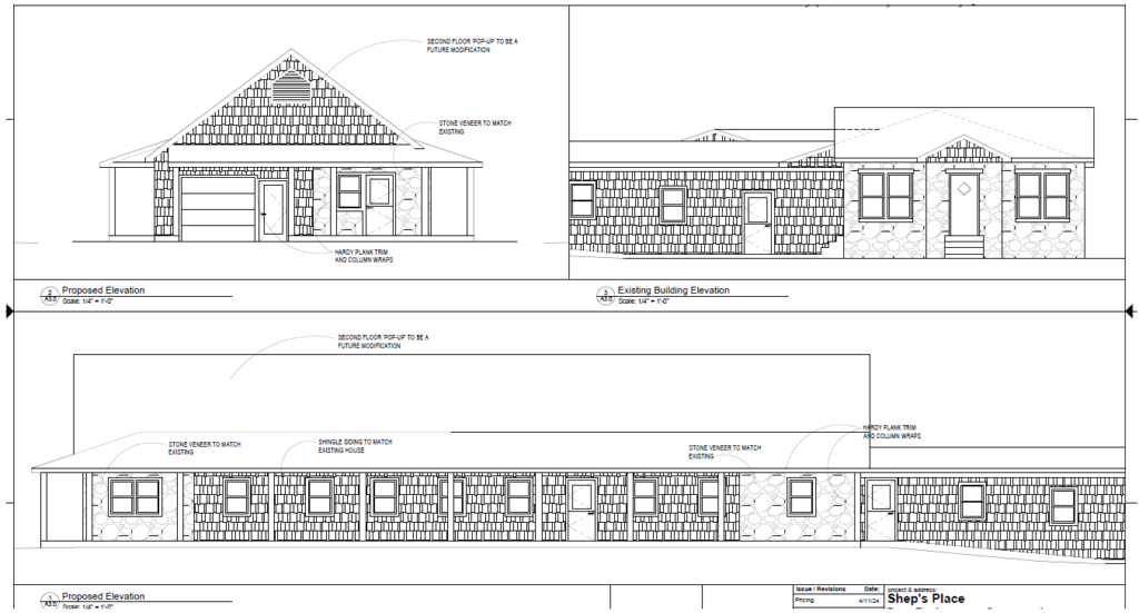
The exterior of the building is designed to mesh with the existing building, and the neighborhood. It maintains the home-like atmosphere that makes Shep’s a welcoming, comforting place.

Naming Opportunities
info@shepsplace.org to claim your spot!
| Name | Description | Cost | # |
|---|---|---|---|
| Doggie Dorm | Cozy suites for several dogs friends to rest, with direct access to the outdoor green space | $15,000 | 10 |
| Bark & Play Zone | Indoor play area for rainy days and meeting new dog friends | $20,000 | 1 |
| Petite Paws Lounge | Comfy living room for small dogs to relax and socialize with other tiny friends | $25,000 | 1 |
| Big Bark Lounge | Comfy living room for beloved big dogs to rest and watch our chiefs play | $25,000 | 1 |
| Meet & Greet Lobby | Meeting area for dog residents to connect with potential foster and adoptive parents | $30,000 | 1 |
| Happy Tails Park | Large outdoor play yard for exercise and squirrel watching | $30,000 | 1 |
| Sniff Yard | Outdoor green sensory area for exploring | $20,000 | 1 |
| Puppy Café | Meal prep area for nutritious doggie dinners | $15,000 | SOLD! |
| Canine Corner Office | Administrative office to help as many dogs as possible | $5,000 | SOLD! |
| Wag & Wash Room | Laundry room and dog washing facilities | $5,000 | SOLD! |
| Furry Friends Foyer | Main outdoor access for dogs and meeting area to socialize with friends | $5,000 | SOLD! |
| Dog Donation Station | Drive up area to receive generous donations from the public | $10,000 | 1 |
| Pup Pantry | Storage of dog food and toys | $5,000 | SOLD! |
Project Videos
| Video 1: Mission |
| Video 2: Current Facility Tour |
| Video 3: Our Residents |
| Video 4: The Waitlist |
| Video 5: The Building Plan |

